As a potential owner of a new house, you may want to give a serious consideration of whether you want a single story house or a multi-floor home. One of the first things to consider first is what your needs would be. If you have young children or elderly members, you need to give some thought about the safety. This is why eliminating the stairs and getting a single story house plan is more ideal.
Although there is only one floor to place all of the rooms in the house, that does not mean that the space is smaller. Believe it or not, a single story house is as convenient as a multi-story house. You can have all the rooms that the family needs, plus, it is cheaper to maintain.
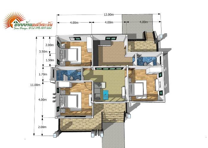
The featured single story house plan for today is a modern-style house. The exterior is painted in a light gray shade, giving the room an illusion that it is wider and larger. The sliding doors and windows are made with thick tempered glass, allowing natural light and ventilation inside the home.
From the porch, you will find the living room on the center, two bedrooms on the left and another bedroom on the right. The bedrooms are spacious enough to fit a full-size bed, side tables, built-in cabinets, and entertainment walls.

The kitchen is separated from the living area with a sliding glass door. It has an L-shaped size, saving more space in the area. Since the space is more limited than a multi-story home, you can place the dining area in the kitchen. Save on space by placing a kitchen island which doubles as a preparation table too.
The two common bathrooms are strategically located in the middle of the house: One bathroom is in between the two bedrooms and another one can be accessed from the kitchen.






Overall, this single story house has a total of three bedrooms, two bathrooms, a living room, a kitchen, a dining area, a terrace, and a service area.
What are your criteria when it comes to looking for your dream home? If you want to find more house plans for your family, check out other articles from Cool House Concepts!

Be the first to comment