Most of us would want a spacious place for our coffee sessions and socializing over the net! Yeah? Of course! And because of this, we want our house to have a spacious veranda or porch where we can breathe freely and enjoy the nature while we sit and sip our coffee and read the world!
However, if your house is built on a lot with a limited space, this dream may seen vague. But there is a solution to that – a roof deck!
Imagine yourself sitting on your roof deck early in the morning before sunrise or at sundown till night enjoying the fresh breeze and the nature. Is that not wonderful?
So, it not really over for your dream to have a roof deck. You just need to consult an architect to design it for you and secure your building before you can install the roof deck. It may be costly because the roof deck needs strong foundation. So, have it estimated by an architect how much it would cost you to install one.
You will be very delighted anyway because in a month or two, your dream roof deck will be finished and will be functional for you!

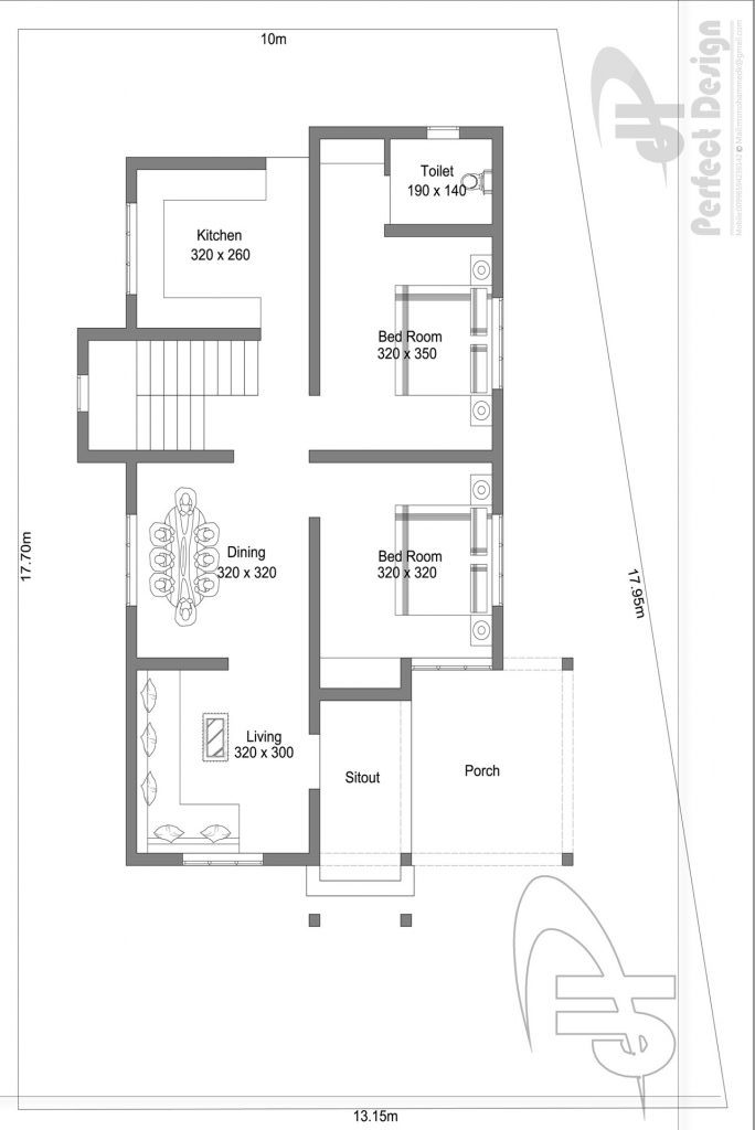
So, this is how the floor plan looks like. You can adopt this design if you wish or you can always remodel it to fit your preferences. Your floor plan still depends on the shape and size of your lot.
Specifications:
Ground Floor is designed in 80 Square meters (860 Sq.Ft)
1 Porch
1 Sit out
1 Living room
1 Dining Hall
2 Bedrooms
1 Attached Bath
1 Common Bath
1 Kitchen
If you like this design and would like to request for the floor plan, you may contact us by leaving your comment here. Our architects will be very glad to have you assisted. We post different designs every day which you can use for your inspiration. You can browse through our other designs and contact us if you need further assistance.
You may want to check our other websites as well. You can click the following hyperlinks and you will be redirected to the websites. If you like the design, please don’t forget to share on your wall for others to see. Please, enjoy. Thank you!

Be the first to comment