When you hear the word cottage, what comes first to your mind? A small house, yeah? In many places, a cottage means a small old-fashioned house. In the United States cottage is often used to mean a small holiday home that is often located in beachfront or lakefront. Cottages are very charming, cozy and homey.
This bungalow looks like a cottage. Its size and appearance makes it very attractive to home buyers who are looking for a small house. A cottage can be built with materials that can be found nearby like stones, timber, and bricks. However, newer versions of cottages also use cement, steel, and glass. The roofing style in this design is the clerestory roof.
Build wrote that a clerestory roof is a roof with a vertical wall which sits between the two sloping sides, which features a row of windows (or one long, continuous window). In other designs like in this house, there are no row of windows but only a vertical wall. The clerestory roof can be symmetrical, with a hipped or gable-type design, or else it can be asymmetrical, resembling something closer to a skillion roof.








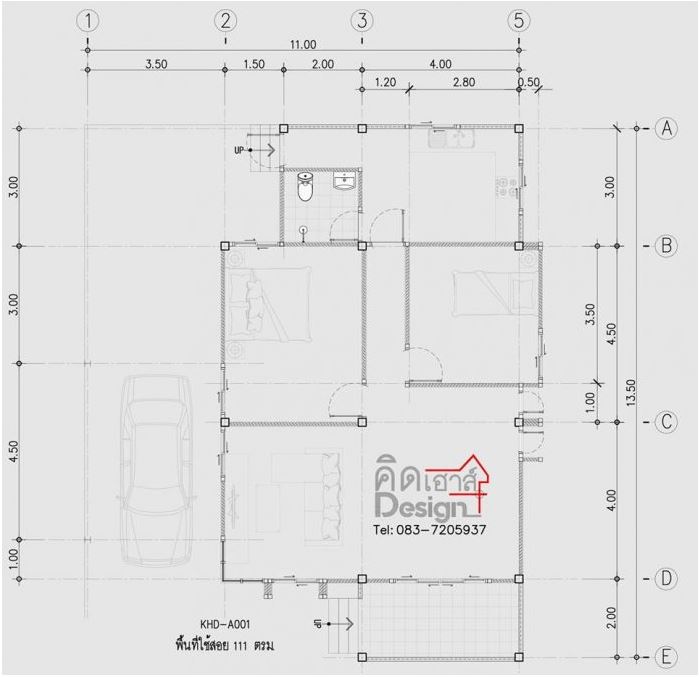
It has three bedrooms, a living room, a toilet and bathroom, a kitchen with a dining and a small porch. This design is affordable. To build it you need to have at least US$15,000 for a functional and semi-furnished status. For 100% finish, you need about US$20,000 -25,000.
If you like this design and would like to request for the floor plan, you may contact us by leaving your comment here. Our architects will be very glad to have you assisted. We post different designs every day which you can use for your inspiration. You can browse through our other designs and contact us if you need further assistance.
You may want to check our other websites as well. You can click on the following hyperlinks and you will be redirected to the websites. There are many designs for you to choose from. Each design has its own unique features where you may get ideas from to build your own. If you like the design, please don’t forget to share on your wall for others to see. Sit back and enjoy. Visit us again soon. Thank you!

Jolie maison, beau design extérieur. Mais deux chambre ne suffisent. Je peux avoir un plan d’étage pareil ?
very nice design, can i request for the floor plan of this house design? hoping you will grant my request. thank you
very nice design, can i request for the floor paln of this house design? hoping you will grant my request. thank you
can I have the floor plan please
I am interested in the Cottage desisgn.
Please provide floor plan for this building.
May I have floor plan and the tech drawings?
I like the design, I would like to request of the floor plans