When it comes to choosing the design of your future home, things can be tricky. A lot of homeowners today prefer to getting a modern style home. There are simple designed homes that can provide relaxation and comfort while there are others that provide ample space for the members of the family to move around.
If you are searching for a modern style home, consider this house design. This contemporary 3-bedroom home is designed in a 30 by 38 floor area. This plan also has a distinct and unique design.

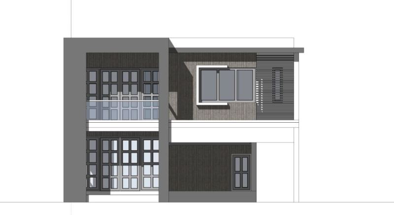
This contemporary 3-bedroom home has a porch, a terrace, three bedrooms, a Master’s bedroom, two bathrooms, a dining room, a kitchen with bar, and a storeroom. It is also surrounded by huge glass windows that allow natural light and ventilation inside the house.
Let’s take a quick look at the overall floor plan of this house:


With a direct access to the entryway from the porch or the car park, you will be greeted by the spacious living room. The living room is separated from the dining and kitchen with a short hall.
What makes this a modern and contemporary 3-bedroom home is the kitchen space. You can customize the overall look of the kitchen. It also has a partition for a bar.
The first bedroom is located on the ground floor. There is also a storage room and a common toilet and bath. The kitchen also provides access to the working area, which can be converted into a dirty kitchen or a laundry area.
Up on the first floor of this home are two bedrooms and a Master’s Bedroom. The Master’s Bedroom has an en-suite toilet and bath, a walk-in closet, and a terrace.




What can you say about this 3-bedroom home? Do you think this fits the needs and the tastes of your family?
If you want to see more house plans, make sure to check other articles from Cool House Concepts!

Be the first to comment